English
Onder bod:Chestertonlaan 52, 1102 XZ Amsterdam - Foto
Onder bod
+22

Chestertonlaan 52 1102 XZ Amsterdam € 375.000,- k.k.

  • Appartement
  • 3 kamers
  • 2 slaapkamers
  • 1 badkamers
  • Bouwjaar 1985
  • 72 m² gebruiksoppervlakte
  • Gestoffeerd
  • A Energielabel A

Beschrijving

**********TO SCHEDULE A VIEWING*************

- Visit HousingNet’s website and select the property you want to view. At the bottom left of the page, click the blue button 'PLAN AFSPRAAK' to book a viewing.
- Alternatively, respond to the advertisement on Pararius or Funda. You will then receive a link to schedule a viewing.

IMPORTANT:
If no viewing has been scheduled yet, please send an enquiry. As soon as a viewing is planned, you will receive an email with the date and time so you can confirm your attendance.

**********For English scroll down ************

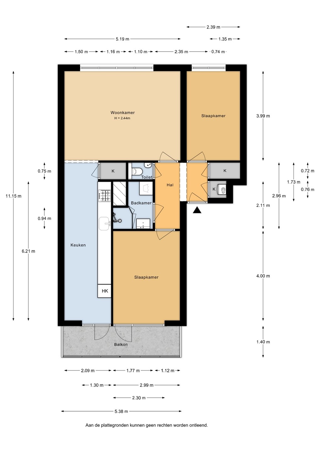
LICHT EN PRAKTISCH INGEDEELD 3-KAMERAPPARTEMENT MET BALKON EN EXTERNE BERGING.

Ruim en licht 3-kamerappartement van circa 72 m² met balkon, gesitueerd op de tweede verdieping van een goed onderhouden complex in de gewilde wijk Venserpolder. De erfpacht is eeuwigdurend afgekocht! Eind 2024 is de keuken gedeeltelijk vernieuwd, uitgebreid en voorzien van moderne apparatuur. Daarnaast is de badkamer deels gerenoveerd, wat bijdraagt aan een zorgeloze start voor de nieuwe eigenaar.

INDELING:
De gemeenschappelijke entree aan de straat biedt via het trappenhuis toegang tot de tweede verdieping. Na binnenkomst in de hal zijn twee slaapkamers, de woonkamer, de badkamer en het toilet bereikbaar.
* Woonkamer: Een lichte, ruime living.
* Keuken: Ruime keuken grenzend aan de woonkamer, met directe toegang tot het balkon. De keuken is deels vernieuwd eind 2024 en uitgerust met inbouwapparatuur zoals een vaatwasser, oven, koelkast en vriezer.
* Slaapkamers: De grote slaapkamer bevindt zich aan de achterzijde en heeft toegang tot het balkon; de tweede slaapkamer ligt aan de straatzijde.
* Badkamer: Voorzien van een inloopdouche, wastafel en radiator, recent gedeeltelijk gerenoveerd (eind 2024).
* Externe berging: Op de begane grond is een externe berging aanwezig van circa 5 m².

LOCATIE EN BEREIKBAARHEID:
Het appartement bevindt zich op loopafstand van diverse voorzieningen, zoals:
* Metrostation Venserpolder (met een reistijd van ongeveer 15 minuten naar Amsterdam Centraal) en Station Duivendrecht.
* Winkels en horecagelegenheden, waaronder de Amsterdamse Poort, Winkelcentrum Kruidenhof Diemen, Arenaboulevard en Woonmall Arena.
* Diverse uitgaansgelegenheden en culturele hotspots, zoals de Johan Cruijff ArenA, Ziggo Dome, AFAS Live en Pathé Arena.
* Groene recreatiegebieden als de Gaasperplas, Ouderkerkerplas en Diemerbos.
* Met de auto zijn de snelwegen A1, A2, A9 en de Ring A10 binnen enkele minuten bereikbaar.

VERENIGING VAN EIGENAREN:
De VvE is actief en gezond. Servicekosten zijn €168,07 per maand en omvatten opstalverzekering en onderhoudsreservering.

BIJZONDERHEDEN:
* Woonoppervlakte ca. 72 m² (NEN 2580)
* Ruim balkon
* Keuken en badkamer gedeeltelijk vernieuwd eind 2024
* Energielabel A
* Externe berging ca. 5 m² op de begane grond
* Actieve en gezonde VvE
* Erfpacht eeuwigdurend afgekocht!!!
* Asbestclausule
* Niet zelfbewoningsclausule vanaf 2024
* Oplevering kan direct in overleg

Een instapklaar 3-kamer appartement met alles binnen handbereik: openbaar vervoer, winkels, cultuur en groen. Perfect voor wie rustig wil wonen met de dynamiek van Amsterdam om de hoek.

____________________________________________________________________________________________________________

BRIGHT AND PRACTICALLY LAYOUTED 3-ROOM APARTMENT WITH BALCONY AND EXTERNAL STORAGE.

Spacious and bright 3-room apartment of approximately 72 m² with a balcony, located on the second floor of a well-maintained complex in the desirable Venserpolder neighborhood. The leasehold has been bought off in perpetuity! At the end of 2024, the kitchen was partially renovated, expanded, and equipped with modern appliances. The bathroom has also been partially renovated, contributing to a carefree start for the new owner.

LAYOUT:
The communal entrance on the street provides access to the second floor via the staircase. After entering the hall, two bedrooms, the living room, the bathroom, and the toilet are accessible.
* Living room: A bright, spacious living room.
* Kitchen: Spacious kitchen adjacent to the living room, with direct access to the balcony. The kitchen was partially renovated at the end of 2024 and equipped with built-in appliances such as a dishwasher, oven, refrigerator, and freezer.
* Bedrooms: The master bedroom is located at the rear and has access to the balcony; the second bedroom faces the street.
* Bathroom: Equipped with a walk-in shower, sink, and radiator, recently partially renovated (end of 2024).
* External storage: An external storage room of approximately 5 m² is available on the ground floor.

LOCATION AND ACCESSIBILITY:
The apartment is within walking distance of various amenities, such as:
* Venserpolder metro station (with a travel time of approximately 15 minutes to Amsterdam Central Station) and Duivendrecht Station.
* Shops and restaurants, including the Amsterdamse Poort, Kruidenhof Diemen shopping center, Arena Boulevard, and Woonmall Arena.
* Various entertainment venues and cultural hotspots, such as the Johan Cruijff ArenA, Ziggo Dome, AFAS Live, and Pathé Arena.
* Green recreation areas such as the Gaasperplas, Ouderkerkerplas, and Diemerbos.
* The A1, A2, and A9 highways, and the A10 ring road, are within a few minutes' drive.

OWNER'S ASSOCIATION:
The Owner's Association is active and healthy. Service charges are €168.07 per month and include building insurance and a maintenance reserve.

DETAILS:
* Living area approx. 72 m² (NEN 2580)
* Spacious balcony
* Kitchen and bathroom partially renovated at the end of 2024
* Energy label A
* External storage room approx. 5 m² on the ground floor
* Active and healthy homeowners' association (VvE)
* Leasehold bought off in perpetuity!!!
* Asbestos clause
* Non-owner-occupancy clause from 2024
* Immediate delivery upon agreement

A move-in ready 3-room apartment with everything within easy reach: public transport, shops, culture, and green spaces. Perfect for those who want a peaceful living environment with the bustle of Amsterdam just around the corner.

****
While HousingNet has compiled this information with the utmost care, no rights can be derived from its content. HousingNet cannot be held liable for any inaccuracies, omissions, or errors. All information provided, including dimensions and surface areas, is indicative and for promotional purposes only.

Kaart

Kenmerken

Overdracht

Referentienummer
000002476
Vraagprijs
€ 375.000,- k.k.
Servicekosten
€ 168,07
Inrichting
Ja
Inrichting
Gestoffeerd
Status
Onder bod
Aanvaarding
In overleg
Aangeboden sinds
Maandag 12 januari 2026
Laatste wijziging
Dinsdag 27 januari 2026

Bouw

Type object
Appartement, portiekflat
Woonlaag
2e woonlaag
Soort bouw
Bestaande bouw
Bouwperiode
1985
Isolatievormen
Dakisolatie
Dubbel glas
Muurisolatie

Oppervlaktes en inhoud

Woonoppervlakte
72 m²
Inhoud
219 m³
Oppervlakte externe bergruimte
4,8 m²
Oppervlakte gebouwgebonden buitenruimte
7,5 m²

Indeling

Aantal bouwlagen
1
Aantal kamers
3 (waarvan 2 slaapkamers)
Aantal badkamers
1 (en 1 apart toilet)

Locatie

Ligging
Dichtbij openbaar vervoer
In woonwijk

Energieverbruik

Energielabel
A

CV ketel

Bouwjaar
2012

Uitrusting

Warm water
CV-ketel
Verwarmingssysteem
Centrale verwarming
Ventilatie methode
Mechanische ventilatie
Natuurlijke ventilatie
Badkamervoorzieningen
Inloopdouche
Toilet
Wasmachineaansluiting
Wastafel
Wastafelmeubel
Heeft een balkon
Ja
Heeft kabel-tv
Ja
Beschikt over een internetverbinding
Ja
Heeft schuur/berging
Ja
Heeft ventilatie
Ja

Vereniging van Eigenaren

Ingeschreven bij de KvK
Ja
Jaarlijkse vergadering
Ja
Periodieke bijdrage
Ja
Reservefonds
Ja
Meer jaren onderhoudsplan
Ja
Onderhoudsverwachting
Ja
Opstal verzekering
Ja

Kadastrale gegevens

Kadastrale aanduiding
Weesperkarspel A 1881
Omvang
Appartementsrecht of complex
Eigendomsituatie
Eigendom belast met erfpacht
Indexnummer
48
Lasten
Eeuwigdurend afgekocht

Media

Plattegronden