English
Onder bod:Johan Jongkindstraat 126, 1062 DJ Amsterdam - Foto
Onder bod
+33

Johan Jongkindstraat 126 1062 DJ Amsterdam € 495.000,- k.k.

  • Appartement
  • 4 kamers
  • 3 slaapkamers
  • 1 badkamers
  • Bouwjaar 1998
  • 94 m² gebruiksoppervlakte
  • Gemeubileerd
  • A Energielabel A

Beschrijving

**** For English scroll down ****

Dit comfortabele, zeer lichte hoekappartement (ca. 94 m2) is gelegen op de eerste verdieping van het kleinschalige nieuwbouwcomplex Het Paviljoen in stadsdeel Overtoomseveld. Het biedt alles wat je nodig hebt voor comfortabel wonen in de stad. Dit appartement is gebouwd in 1998 en beschikt over een energie label A, wat betekent dat het energiezuinig is en je helpt om je maandelijkse kosten te verlagen. Door de vele raampartijen is dit appartement zeer licht! Met een berging van 5m2 heb je voldoende ruimte om al je spullen op te bergen en het balkon van bijna 10m2 biedt de ideale plek om te genieten van de middag- en avondzon.

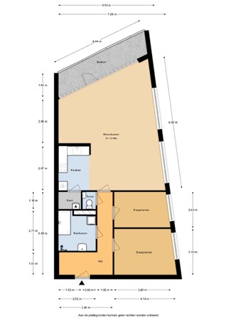
INDELING:
Bij binnenkomst in de hal is er ruimte voor het ophangen van je jassen en bergen van schoenen en dergelijke. Aan de rechterzijde zijn de 2 ruime slaapkamers te vinden (in de woonkamer kan de derde slaapkamer gerealiseerd worden), Aan de andere zijde van de hal zijn de badkamer met ligbad, aparte douche, wastafel en radiator. Toilet is apart bereikbaar. De zeer ruime woonkamer met toegang tot het balkon, open keuken en bergkast met cv-opstelling vind je aan het einde van de hal. Verder is er een berging gelegen op de begane grond van het complex. Door de ruime woonkamer is er ook de mogelijkheid om een derde slaapkamer te creëren. Andere appartementen in het complex hebben dit ook op deze wijze ingericht.

OMGEVING:
Deze fijne woning in Overtoomse Veld biedt de ideale combinatie van rust en bereikbaarheid. Het Sierplein en Osdorpplein, met diverse winkels en supermarkten, liggen op slechts enkele minuten van de woning. Op loopafstand vind je station Lelylaan, waar trein, metro en tram je snel naar het centrum of Schiphol brengen. Met de A10 om de hoek ben je bovendien zo de stad uit. Heb je een auto? Genoeg parkeergelegenheid in de buurt van de woning. Voor ontspanning ligt het groene Rembrandtpark of het Vondelpark op een steenworp afstand. Een perfecte plek voor wie comfortabel wil wonen met alle voorzieningen binnen handbereik!

BIJZONDERHEDEN:
- Bouwjaar 1998
- Energielabel A
- Woonoppervlakte van ca. 94 m2
- 2 slaapkamers maar eenvoudig uit te breiden naar 3 slaapkamers
- Berging aanwezig
- CV ketel uit 2016
- Erfpacht is afgekocht tot 30 september 2047
- Servicekosten €232,70 per maand
- In overleg
- Centrale ligging t.o.v. diverse uitvalswegen, winkelvoorzieningen en openbaar vervoerverbindingen

Plan vandaag nog een bezichtiging voor de Johan Jongkindstraat 126. Jouw nieuwe thuis wacht op je!

*********

This comfortable and exceptionally bright corner apartment (approx. 94 m²) is located on the first floor of the small-scale new-build complex Het Paviljoen in the Overtoomse Veld district. Offering everything you need for comfortable city living, this apartment was built in 1998 and boasts an energy label A, making it energy-efficient and helping you save on monthly costs. Thanks to its large windows, the apartment is flooded with natural light! Additionally, it features a 5 m² storage room for all your belongings and a spacious balcony of nearly 10 m², perfect for enjoying the afternoon and evening sun.

LAYOUT
Upon entering the hallway, there is space for coats, shoes, and other items. On the right side, you will find two generously sized bedrooms (in the living room you can create the third bedroom). On the opposite side, there is a bathroom equipped with a bathtub, separate shower, sink, and radiator, while the toilet is conveniently located separately. The spacious living room features access to the balcony, an open kitchen, and a storage closet with a central heating system. Additionally, a storage unit is located on the ground floor of the complex. Due to the spacious living room, there is the possibility to create the third bedroom. Other apartments in the complex have also arranged it this way.

SURROUNDINGS
This lovely home in Overtoomse Veld offers the perfect combination of tranquility and accessibility. The Sierplein and Osdorpplein, with a variety of shops and supermarkets, are just a few minutes away. Lelylaan Station is within walking distance, providing quick connections by train, metro, and tram to the city center and Schiphol Airport. With the A10 highway nearby, you can easily drive in and out of the city. Do you have a car? There is ample parking in the neighborhood. For relaxation, the green Rembrandt Park and the Vondelpark are just around the corner. A perfect location for those looking for a comfortable home with all amenities within reach!

HIGHLIGHTS
- Built in 1998
- Energy label A
- Living area approx. 94 m²
- 2 bedroom but easy to create a third bedroom
- Private storage unit
- Central heating system (2016)
- Leasehold paid off until September 30, 2047
- Service costs: €232.70 per month
- Available in consultation
- Centrally located near major roads, shopping areas, and public transportation

Schedule a viewing today at Johan Jongkindstraat 126 – your new home is waiting for you!

Deze informatie is door ons met de nodige zorgvuldigheid samengesteld. Wij aanvaarden echter geen enkele aansprakelijkheid voor enige onvolledigheid of onjuistheid van de informatie of de gevolgen daarvan. Alle opgegeven maten en oppervlakten zijn indicatief. Koper heeft zijn eigen onderzoeksplicht naar alle zaken die voor hem of haar van belang zijn. Met betrekking tot deze woning zijn wij als makelaar de adviseur van verkoper. Wij raden u aan om een eigen deskundige (aankoop)makelaar in te schakelen die u begeleidt bij het aankoopproces. Als u specifieke wensen heeft omtrent de woning, is het verstandig om die tijdig kenbaar te maken aan uw aankopend makelaar en hiernaar zelfstandig onderzoek te (laten) doen.

Kaart

Kenmerken

Overdracht

Referentienummer
000002406
Vraagprijs
€ 495.000,- k.k.
Servicekosten
€ 232,70
Inrichting
Optioneel
Status
Onder bod
Aanvaarding
In overleg
Aangeboden sinds
Woensdag 3 september 2025
Laatste wijziging
Vrijdag 19 september 2025

Bouw

Type object
Appartement, bovenwoning
Woonlaag
1e woonlaag
Soort bouw
Bestaande bouw
Toegankelijkheid
Mindervaliden
Senioren
Bouwperiode
1998
Dakbedekking
Bitumen
Type dak
Platdak
Isolatievormen
Dakisolatie
Dubbel glas
Muurisolatie
Spouwmuren

Oppervlaktes en inhoud

Woonoppervlakte
94 m²
Inhoud
282 m³
Oppervlakte externe bergruimte
5,1 m²
Oppervlakte gebouwgebonden buitenruimte
9,7 m²

Indeling

Aantal bouwlagen
1
Aantal kamers
4 (waarvan 3 slaapkamers)
Aantal badkamers
1 (en 1 apart toilet)

Locatie

Ligging
Beschutte ligging
Dichtbij openbaar vervoer
In woonwijk
Vrij uitzicht

Energieverbruik

Energielabel
A

CV ketel

Warmtebron
Gas
Bouwjaar
2016
Eigendom
Eigendom

Uitrusting

Warm water
CV-ketel
Verwarmingssysteem
Centrale verwarming
Badkamervoorzieningen
Douche
Ligbad
Wasmachineaansluiting
Wastafel
Heeft een balkon
Ja
Heeft een lift
Ja
Heeft schuur/berging
Ja

Vereniging van Eigenaren

Ingeschreven bij de KvK
Ja
Jaarlijkse vergadering
Ja
Periodieke bijdrage
Ja
Reservefonds
Ja
Meer jaren onderhoudsplan
Ja
Onderhoudsverwachting
Ja
Opstal verzekering
Ja

Kadastrale gegevens

Kadastrale aanduiding
Amsterdam D 7125A
Omvang
Appartementsrecht of complex
Eigendomsituatie
Eigendom belast met erfpacht
Lasten
Voortdurend,